Преміальний клубний дім
Вишуканий чотирьохповерховий
будинок клубного типу на 17 квартир підвищеного комфорту.
Про об'єкт
Резиденція Бойківська об’єднала усі переваги життя у місті з можливістю у будь-який момент прогулятися серед природи чи помедитувати на терасі у повній тиші.
Сучасні лінії фасаду гармонійно поєднуються з класичними елементами, створюючи образ, який буде актуальним десятиліттями.
Візуально збільшує простір, наповнює його світлом та додає затишку. Це ваша єдність із природою, не виходячи з дому.
Територія резиденції доступна лише мешканцям та їх гостям, тому ви можете бути спокійними за вашу безпеку.
Не треба витрачати час на пошук вільного місця для паркування поруч із домом. В резеденції передбачений підземний паркінг на 30 паркомісць.
Лише 17 квартир підвищеного комфорту.
Галерея
1
Просторий хол із сучасним дизайном, що створює відчуття дому ще на порозі.
2
Продуманий благоустрій для спокійного відпочинку мешканців у приватній атмосфері.
3
Поєднання преміальних матеріалів і сучасних рішень робить екстер’єр справжнім символом престижу.
Лоббі
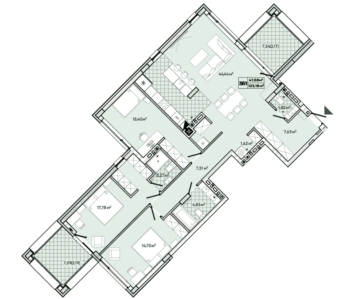
Планування
Записатись на перегляд квартири
Заповніть форму та ми обов'язково зв'яжемось з вами найближчим часом
"ІНТЕРГАЛ-БУД" - ЛІДЕР СЕРЕД ПРИВАТНИХ ЗАБУДОВНИКІВ УКРАЇНИ
22 роки відповідаємо за розбудову комфортного та зручного міста. здійснили мрію про власне житло понад 28 000 родин у Києві, Львові, Житомирі, Чернівцях, Мукачеві, Ужгороді та Одеси.
Новини
Ми чекаємо
саме на тебе
Відділ продажу
м. Львів, площа Старий Ринок, 8
пн-пт 9:00-19:00. сб. 10:00-15:00
м. Львів, вул. Бойківська 28

